 
¿Comienzas un negocio o nuevo proyecto? Nosotros te podemos ayudar.
 
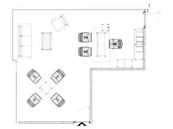
            Plano a dos dimensiones desde una perspectiva cenital el cual nos brinda una idea general del proyecto, el cual además de permitirnos leer e interpretar los espacios es la base del trabajo pues nos muestra a escala el espacio exacto con el que contamos.
 
            Vista o proyección desde tres planos que nos muestra los espacios con un efecto tridimensional desde dos planos representando así una idea más clara y realista sobre los espacios pues nos brinda volumen y altura.
 
            Representación tridimensional digital que ofrece vista desde cualquier ángulo además de ofrecer representaciones de colores, luces y texturas dándonos la posibilidad de hacer una visita virtual del lugar, es la representación más cercana a la realidad.
Los terminados y materiales que utilizamos en nuestro mobiliario y accesorios, así como nuestro personal que ejecuta los proyectos serán seleccionados siempre buscando la mejor calidad, funcionalidad y el precio más conveniente.
Además de utilizar los mejores recursos, servicios y materiales, todo el mobiliario y accesorios cuentan con la garantía por desperfectos de fábrica, o por la mala ejecución durante la trasportación, entrega y armado.
Atención y soporte personalizado donde nos comprometemos a explicar y resolver a detalle cualquier duda o desacuerdo que surja alrededor del proyecto, así como la mano de obra mejor capacitada y con ello dar un excelso servicio.
Estamos comprometidos a entregar en tiempo y forma lo acordado con el cliente con respecto al trabajo y al proyecto en cuestión, además cumpliendo con todos y cada uno de los tópicos de nuestra política de satisfacción.
"La calidad nunca es un accidente; siempre es el resultado de un esfuerzo de la inteligencia."
 
             
             
             
             
             
             
             
             
             
             
             
            Déjanos tus datos y nos encargaremos de hablarte o enviarte información en la fecha seleccionada.
E N V I A N D O . . .
espera por favor
